Мы используем куки-файлы. Соглашение об использовании
С мебелью
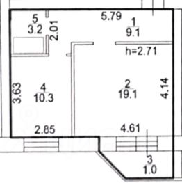
Общая площадь41,7 м²
Жилая площадь19,1 м²
Площадь кухни10,3 м²
Этаж3 из 6
Год постройки2013
Продается шикарная однокомнатная квартира по адресу: г. Бронницы, ул. Соловьиная роща, д. 1. 3-й этаж 5-этажного кирпичного дома. Площадь 41,7 кв. м, остекленная лоджия с входом из гостиной, просторная кухня, совмещенный санузел. Отличный, качественный ремонт, есть вся необходимая мебель и техника (холодильник, стиральная машина, посудомоечная машина, духовой шкаф). Заезжай, живи и радуйся жизни! Престижный, благоустроенный район, в шаговой доступности все объекты городской инфраструктуры. Один взрослый собственник, свободная продажа. Квартира находится в залоге СберБанка (ипотека), что означает полную прозрачность и безопасность вашей сделки! Звоните и записывайтесь на просмотр!
Позвоните автору
Вам ответят на все вопросы

О квартире

Тип жилья

Вторичка

Общая площадь

41,7 м²

Жилая площадь

19,1 м²

Площадь кухни

10,3 м²

Санузел

1 совмещенный

Балкон/лоджия

1 лоджия

Вид из окон

Во двор

Ремонт

Евроремонт

Продаётся с мебелью

Да

О доме

Год постройки

2013

Тип дома

Кирпичный

Тип перекрытий

Железобетонные

Парковка

Наземная

Подъезды

4

Отопление

Центральное

Аварийность

Нет

Газоснабжение

Центральное

Спросите умного помощника
Получите экспертное мнение о жилье

Расположение

Ипотечный калькулятор
  • 20.1%
  • 30%
  • 40%
  • 50%
лет
  • 10 лет
  • 20 лет
  • 30 лет
Загружаем предложения от застройщика и банков
Автор объявления
ID 17421641
  • Документы проверены
  • 7 лет 3 месяца на ЦИАН
  • 6 800 000 ₽
    Эксперт от ЦианаПомощь с поиском и сделкой
    Цена за метр
    163 070 ₽/м²
    Условия сделки
    свободная продажа
    Ипотека
    возможна
    Автор объявления
    ID 17421641
    Документы проверены