Продаётся уютная 2-комнатная квартира 51,5 м² (с учётом лоджии, в ЕГРН 48,3 м²) в г. Бронницы. Состояние хорошее.
Показы проводятся по предварительной договорённости.
Описание объекта
• Общая площадь: 51,5 м²
• Расположение: 1-й этаж 5-этажного панельного дома.
• Ключевые преимущества: распашные комнаты, раздельный санузел, центр города.
• Особенность: Минимальное время доступа до всех городских служб.
Состояние
• Ремонт: Хороший ремонт.
• Окна: Пластиковые.
• Батареи: стандартные
• Лоджия: застеклённая.
• Продажа: полностью с мебелью и техникой, за исключение двух светильников и 1-й тумбы
• Подъезд: опрятный, без посторонних запахов
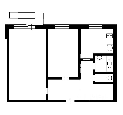
Планировка
• Кухня: 6,5 м²
• Комнаты: 15,0 м² и 13,4 м².
• Санузел: Раздельный (2,70 м² ванна и 1,30 м² туалет).
• Холл: 9,0 м².
• Лоджия: 3,0 м² - выход из большой комнаты и из кухни
Инфраструктура и локация
• Транспорт: Остановка городских автобусов метров 50.
• ФОК с бассейном и игровым залом — в непосредственной близости.
• Главное преимущество: до всех ключевых точек города (магазины, спортивные объекты, зоны отдыха) всего 3-7 минут пешком или 2-3 минуты на машине.
• Спорт: также в городе есть бассейн "Титан" и стадион "Юность".
• Магазины: "Пятерочка", "Магнит", "Чижик", "Бристоль", "Сыр да масло" и др.
• Отдых: Кожурновский пруд, озеро Бельское.
• Образование: Детские сады, школы, лицей, техникум.
• Медицина: Больница, поликлиника.
• Сервисы: Пункты выдачи Ozon, Wildberries, Яндекс.Маркет, СДЭК.
Территория
• Благоустроенный двор с новой детской и спортивной площадками.
• Парковочные места на прилегающей территории.
Транспортная доступность
• Выезд на Рязанское шоссе: 1 км (~2 мин.).
• Центр Бронниц: 0 м (вы в центре).
• Москва (м. Котельники): ~50 мин. на авто.
Юридическая информация
• Кадастровый номер 50:62:0010114:94
• Документы и обременения: Свободная продажа, без обременений
• Собственник: 1 взрослый
• Прописка: нет зарегистрированных
• Гарантии: Страхование сделки до 30 млн руб. и сертификат финансовой гарантии.
Дополнительные преимущества
• Готовы рассмотреть различные варианты сделки.
• Профессиональная помощь в оформлении.
Мебель: полностью с мебелью и техникой, за исключение двух светильников и 1-й тумбы
Агентство недвижимости "Уют" ваш надёжный партнёр в сделках с недвижимостью.
Звоните, чтобы организовать просмотр!
1183912 При необходимости мы также поможем в продаже вашего объекта, одобрим ипотеку, в том числе со ставкой от 11.9% от банков партнеров, работаем с материнским капиталом, окажем полное юридическое сопровождение сделки. Подбор новостроек бесплатный.